Ningbo Hongjia CNC Technology Co., Ltd. Casa / Prodotti / Serie ordinarie di svolta, fresatura e perforazione / X6132 Macchinatura da tavolo di sollevamento universale

X6132 Macchinatura da tavolo di sollevamento universale

Introduzione e utilizzo del prodotto
Questa macchina utensile è una specie di macchina per taglieri in metallo forte, la macchina utensile ha una forte rigidità, un ampio intervallo di velocità di alimentazione e può sopportare chip di carico pesante. Il foro del cono del mandrino può essere installato direttamente o attraverso gli accessori di varie frese cilindriche, taglieri di fresatura circolare, taglieri di formazione, taglieri di fresatura a faccia e altri strumenti, adatti per l'elaborazione di varie parti del piano, pendio, scanalatura, altra industria, ecc.

+ Contattaci
  • X6132 Macchinatura da tavolo di sollevamento universale

Informazioni sulla produzione

Caratteristiche strutturali principali
1, la base, la fusoliera, il banco di lavoro, lo scivolo, lo scivolo di sollevamento e altri componenti principali sono gettati di materiali ad alta resistenza e trattamento di invecchiamento artificiale, per garantire la stabilità a lungo termine della macchina utensile.
2, il cuscinetto principale dell'albero della macchina utensile è un cuscinetto a rulli affusolato, l'albero principale adotta tre strutture di supporto, la rigidità del sistema dell'albero principale è buona, la capacità del cuscinetto è forte e l'albero principale adotta la frenata del consumo di energia, la coppia di frenata è grande e l'arresto è rapida e affidabile.
3, l'angolo di rotazione orizzontale della tabella ± 45 °, espande l'intervallo di elaborazione della macchina utensile. La parte di trasmissione principale e la parte di alimentazione della tabella di lavoro adottano la struttura della trasmissione degli ingranaggi, l'intervallo di regolazione della velocità è ampia e la modifica della velocità è conveniente e veloce.
4, la direzione della tabella X/Y/Z ha feed manuali, feed mobili e tre rapidi mobili, la velocità del feed può soddisfare diversi requisiti di elaborazione; L'alimentazione rapida può far raggiungere rapidamente il pezzo in working della posizione di elaborazione, l'elaborazione è conveniente e veloce e il tempo di non elaborazione viene ridotto.
5, X, Y, Z Coppia di guide a tre direzioni di tempra ultra-audio, macinazione di precisione e raschiatura, con lubrificazione forzata, migliora l'accuratezza, prolunga la durata della macchina.
6. Il dispositivo di lubrificazione può forzare la vite di piombo longitudinale, orizzontale, L e verticale per lubrificare, ridurre l'usura della macchina utensile e garantire il funzionamento efficiente della macchina utensile; Allo stesso tempo, il sistema di raffreddamento cambia le dimensioni del flusso del liquido di raffreddamento regolando l'ugello per soddisfare le diverse esigenze di elaborazione.
7, progettazione di macchine utensili in linea con il principio ergonomico, facile da usare; Il pannello di funzionamento è progettato con simboli figurativi, che è semplice e intuitivo.

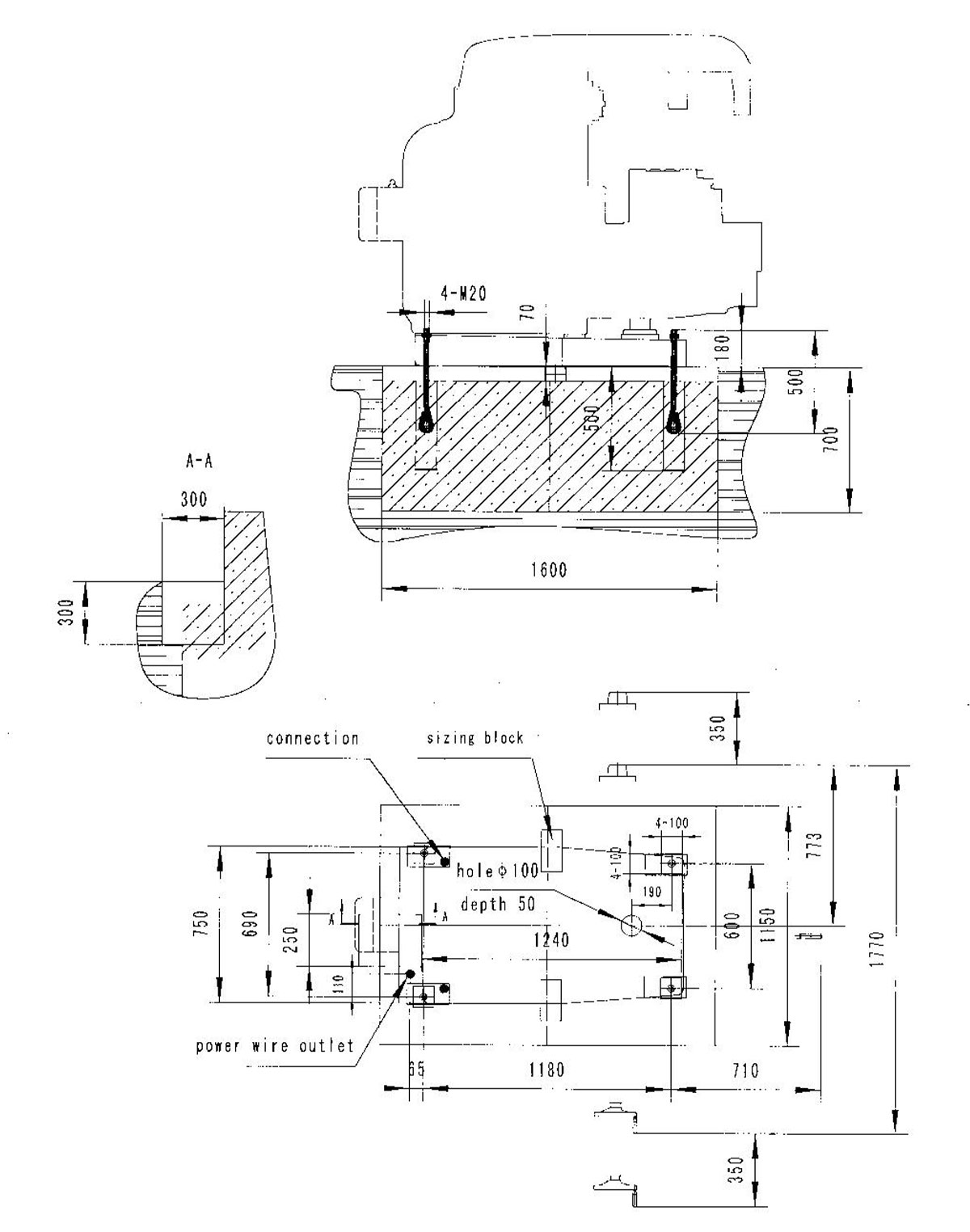
Parametri tecnici principali delle macchine utensili

Rastremale del foro dell'albero principale 7:24 ISO50
Distanza dalla linea centrale del mandrino alla guida guida verticale del letto 30-350 mm
Distanza dalla linea centrale del mandrino al raggio di sospensione 155 mm
Apertura del mandrino 29 mm
Angolo di rotazione massima della tabella ± 45 °
Gamma/serie di velocità del mandrino 30 ~ 1500 giri /min /18
Dimensione del tavolo 1320x320 mm
Tabella ictus longitudinale/trasversale/verticale 700 (680/255 (240)/320 (300) mm
Tabella gamma di alimentazione longitudinale/trasversale/verticale Livello 18 23.5-1180/23.5-1180/8-394 mm/min
Tabella Velocità di movimento rapido verticale/orizzontale/verticale 2300/2300/770 mm/min
Numero, larghezza e spaziatura di slot a forma di T del banco di lavoro 18/03/70 mm
Potenza motore principale 7.5KW
Nutri la potenza del motore 1,5 kW
Dimensioni della macchina (l x w x h) 2294x1770x1665 mm
Peso della macchina a rete 2700/3000 kg

Rimaniamo in contatto

+ SUBMIT
Ningbo Hongjia CNC Technology Co., Ltd.
Ningbo Hongjia CNC Technology Co., Ltd.
Ningbo Hongjia CNC Technology Co., Ltd. è iniziata nel 2006 ed è stata fondata nel 2018. Si trova nel nuovo distretto di Qianwan, Ningbo City, provincia di Zhejiang, ala sud della zona economica del fiume China Yangtze. È un'impresa specializzata nella ricerca, sviluppo, produzione e vendite di attrezzature da taglio dei metalli CNC. Come una Cina X6132 Macchinatura da tavolo di sollevamento universale supplier and custom X6132 Macchinatura da tavolo di sollevamento universale company, Con una forte forza tecnica e una ricca esperienza del settore, Hongjia CNC si impegna a fornire ai clienti soluzioni CNC avanzate per soddisfare le esigenze dei clienti in diversi settori.
Impianto e attrezzatura
  • Aspetto di fabbrica
  • Aspetto di fabbrica
  • Attrezzatura
  • Attrezzatura
  • Attrezzatura
  • Attrezzatura
  • Attrezzatura
Qual è la notizia
Conoscenza del settore

X6132 Macchinatura da tavolo di sollevamento universale , come prodotto di Hongjia CNC, ha vinto un'alta reputazione in molti settori per la sua potente capacità di taglio dei metalli e ampia applicabilità. Questa macchina utensile non è solo abbastanza rigida da resistere alle operazioni di taglio a carico pesante, ma è anche dotata di una vasta gamma di velocità di alimentazione per garantire la stabilità e l'efficienza del processo di elaborazione. Its spindle taper hole design is flexible, and various cylindrical milling cutters, circular milling cutters, forming milling cutters, face milling cutters, etc. can be installed directly or through accessories, providing unlimited possibilities for the processing of various complex parts such as planes, bevels, grooves, holes, etc. It is an ideal processing equipment for machinery manufacturing, mold manufacturing, instrumentation, automobiles, motociclette e altri settori.

Squisito artigianato, lanciare un'eccellente qualità
Hongjia CNC sa che l'alta qualità deriva dalla ricerca finale dei dettagli. I componenti principali della macinazione della tavola di sollevamento universale X6132, come la base, il corpo, il banco di lavoro, lo scivolo, lo scivolo di sollevamento, ecc., Sono tutti lanciati con materiali ad alta resistenza e invecchiato artificialmente, il che elimina efficacemente la sollecitazione interna del materiale e garantisce la stabilità a lungo termine e la conservazione della precisione della macchina utensivo. Il mandrino adotta cuscinetti a rulli affusolati, combinati con una struttura a tre supporti, che non solo ha una buona rigidità del sistema e una forte capacità di carico, ma è anche dotato di un dispositivo di freno che consuma energia, con una grande coppia di frenatura e un arresto rapido e affidabile, fornendo una solida garanzia per l'elaborazione ad alta precisione.

Flessibile e mutevole, ampliando i confini di elaborazione
Al fine di soddisfare le esigenze di elaborazione diversificata, l'angolo di rotazione orizzontale della worktable della macchina per la fresatura della tavola di sollevamento universale X6132 può raggiungere ± 45 °. Questo design espande notevolmente la gamma di elaborazione della macchina utensile. Allo stesso tempo, la parte di trasmissione principale e la parte di alimentazione della worktable adottano una struttura di trasmissione degli ingranaggi, con un intervallo di regolazione ad ampio velocità e una variazione di velocità conveniente e rapida, rendendo il processo di elaborazione più flessibile ed efficiente. In termini di modalità di alimentazione, le direzioni X/Y/Z della macchina utensile hanno tre modalità: alimentazione manuale, alimentazione motorizzata e alimentazione rapida motorizzata. La velocità di alimentazione può essere regolata in modo flessibile in base alle diverse esigenze di elaborazione. La funzione di alimentazione rapida consente al pezzo di raggiungere rapidamente la posizione di elaborazione, accorciando notevolmente il tempo di non elaborazione e migliorando l'efficienza di elaborazione complessiva.

Produzione di precisione, durata di servizio prolungata
In termini di elaborazione dei dettagli, le binari di guida X, Y e Z della macinazione della tavola di sollevamento universale X6132 sono state spenta ultrasonicamente, terreno di precisione e raschiato e il sistema di lubrificazione forzata non solo ha migliorato significativamente l'accuratezza dell'elaborazione, ma ha anche esteso efficacemente la durata di servizio della macchina utensivo. Il dispositivo di lubrificazione può forzare la lubrificazione delle viti di piombo e delle rotaie di guida nelle direzioni longitudinali, trasversali e verticali, riducendo efficacemente l'usura della macchina utensile e garantendo il funzionamento efficiente e stabile della macchina utensile. Inoltre, il sistema di raffreddamento regola in modo flessibile il flusso del liquido di raffreddamento regolando l'ugello per soddisfare le esigenze di raffreddamento in diverse condizioni di elaborazione, migliorando ulteriormente la qualità e l'efficienza di elaborazione.

Progettazione umanizzata, processo operativo semplificato
Hongjia CNC ha considerato pienamente la comodità dell'interazione umana-macchina durante la progettazione della macchina da fresatura della tavola di sollevamento universale X6132. La progettazione complessiva della macchina utensile è conforme ai principi dell'ergonomia, è facile da usare e facile da usare. Il pannello di controllo adotta un design di simboli grafici, che è intuitivo e facile da capire. Anche gli operatori per la prima volta possono padroneggiarlo rapidamente, il che riduce notevolmente la difficoltà del funzionamento e migliora l'efficienza del lavoro.

Non esitare a contattare quando hai bisogno di noi!